Voir les messages sans réponses | Voir les sujets actifs
Règles du forum
REGLES IMPORTANTES CONCERNANT CETTE RUBRIQUE
Luttons ensemble contre le piratage et la diffusion sauvage des fichiers, photos et autres éléments publiés dans cette rubrique !
En proposant un nouvel article, vous vous engagez officiellement :
- soit à être l'auteur du texte et le créateur de toutes les pièces jointes
- soit d'avoir reçu l'autorisation expresse de celui-ci de diffuser les fichiers et/ou photos mis à disposition.
Les articles sont publiés sous la seule responsabilité de leur auteur initial.
En aucun cas, arnaudw.fr et les gestionnaires du forum ne saurait être tenus responsables de la mise en ligne, sous quelque forme que ce soit, d'éléments soumis à des droits de copyright, droits de diffusion ou restrictions d'utilisation, effectués sans le consentement de son auteur.
Si un membre ou un visiteur souhaite utiliser à des fins personnelles le fichier mis en ligne, il s'engage à contacter la personne l'ayant déposé, par messagerie privée du forum ou par e-mail. Libre à lui de répondre favorablement ou non à cette demande.
Merci de NE PAS SURCHARGER INUTILEMENT les sujets par des messages ou des commentaires de satisfaction afin de CONSERVER LA LISIBILITE des posts.
|
Page 1 sur 1
|
[ 1 message ] |
|
| Auteur |
Message |
|
sp-max54
|
Sujet du message: plan de la caisse fptsr sur Premium Posté: Jeu 13 Mai 2010 20:18 |
|
|
|
|
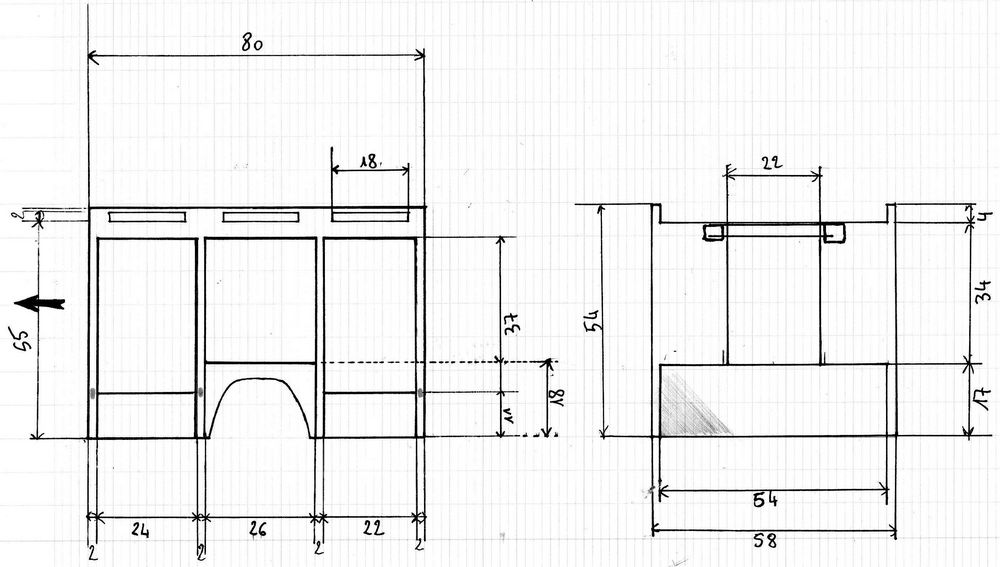
Les plans en mm de la caisse du fptsr sur Premium du sdis 54:
| Fichiers joints: |

cotes fptsr.jpg [ 86.1 Kio | Vu 10478 fois ]
|
|
|
| Haut |
|
 |
|
Page 1 sur 1
|
[ 1 message ] |
|
Qui est en ligne |
Utilisateurs parcourant ce forum: Aucun utilisateur enregistré et 3 invités |
|
Vous ne pouvez pas poster de nouveaux sujets Vous ne pouvez pas répondre aux sujets Vous ne pouvez pas éditer vos messages Vous ne pouvez pas supprimer vos messages Vous ne pouvez pas joindre des fichiers
|